Lokal użytkowy Przysieki gm. Skołyszyn,
Przysieki gm. Skołyszyn Pokaż na mapie ›
Dodane: Czwartek, 02 Kwiecień, 2026 13:01
1 500 zł
Szczegóły ogłoszenia
- Kategoria: Biura i lokale / Do wynajęcia
- Przeznaczenie:Handel i Usługi
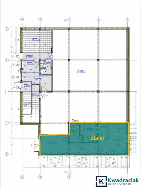
- Powierzchnia:35 m2
- Sprzedaż:Pośrednik
- Cena: 1 500 zł
Opis oferty
>>Krótki opis nieruchomościOferujemy na wynajem lokal handlowo-usługowy w nowym budynku w miejscowości Przysieki. Narożne położenie oraz bardzo dobra widoczność z dwóch stron sprawiają, że to atrakcyjne miejsce pod działalność gastronomiczną - kawiarnię, cukiernię, kebab lub inny punkt małej gastronomii. Dodatkowym atutem jest taras, który w sezonie letnim pozwala znacząco zwiększyć liczbę miejsc dla klientów.
Atuty nieruchomości:
• powierzchnia lokalu: 35 m²
• narożne usytuowanie - doskonała ekspozycja
• taras do wykorzystania w sezonie letnim
• duży parking przy budynku
• media na osobnych licznikach (prąd, gaz, woda) - rozliczane według zużycia
• toaleta dla klientów oraz zaplecze dla pracowników
• lokal zostanie wyposażony (cena obejmuje wyposażenie)
• budynek w pobliżu zjazdu z drogi krajowej nr 28
Opis lokalu / układ:
Lokal o powierzchni 35 m² znajduje się na parterze nowego budynku. Posiada salę główną z możliwością aranżacji części sprzedażowej oraz miejsca dla klientów. Dodatkowo do dyspozycji najemcy jest toaleta dla klientów oraz zaplecze socjalne dla pracowników.
Dużym atutem jest przynależny taras, który w okresie wiosenno-letnim umożliwia ustawienie dodatkowych stolików i zwiększenie liczby obsługiwanych gości.
Standard i wyposażenie:
Lokal aktualnie jest w stanie jak na zdjęciach, jednak przed przekazaniem zostanie wyposażony. Media - prąd, gaz oraz woda - rozliczane są według zużycia, na podstawie indywidualnych liczników.
Lokalizacja i otoczenie:
Nieruchomość zlokalizowana jest w Przysiekach, w sąsiedztwie szkoły oraz przystanku PKP. W budynku obok planowane jest otwarcie dużego sklepu delikatesowego, a na piętrze powstaną dodatkowe punkty usługowe, co zwiększy ruch klientów. Bliskość zjazdu z drogi krajowej nr 28 zapewnia wygodny dojazd i dobrą komunikację.
Cena: 1 500 zł netto + VAT
(Cena obejmuje lokal z wyposażeniem, media płatne dodatkowo według zużycia.)
Zadzwoń i umów się na prezentacje. Z przyjemnością pokażemy Ci to wyjątkowe miejsce!
Kontakt do opiekuna oferty:
Maciej Suwała
Kwadraciak Biuro Nieruchomości
tel: 725 - pokaż numer telefonu -
e-mail: @
www.kwadraciak.krosno.pl
Usługi naszego biura świadczymy na podstawie umowy pośrednictwa, która zapewnia bezpieczeństwo transakcji i pełne wsparcie na każdym etapie współpracy. Za świadczone usługi pobieramy wynagrodzenie w postaci prowizji. Prezentowane nieruchomości nie stanowią oferty w rozumieniu Kodeksu Cywilnego. Staramy się, aby informacje były rzetelne i aktualne, jednak ponieważ pochodzą od osób trzecich, nie zawsze możemy je zweryfikować, dlatego Kwadraciak Biuro Nieruchomości nie ponosi odpowiedzialności za ich dokładność.
Numer oferty: KWA138609
Powiadom o podobnych ogłoszeniach
Lokalizacja: Przysieki
Kategoria: Nieruchomości » Biura i lokale » Do wynajęcia
Cena: od 1500 zł do 1500 zł Powierzchnia : od 30 m2 do 40 m2
Chcę otrzymywać powiadomienia o nowych ofertach
Maciej Suwała
Konto firmowe
Na Lento.pl od 12 lip 2021
Strona użytkownika
- Wypromuj ogłoszenie
- Zgłoś naruszenie
- Drukuj ulotkę
- Edytuj/usuń ogłoszenie
- Udostępnij ogłoszenie
- Dodaj na Facebook





























